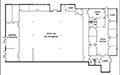
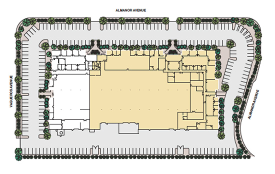
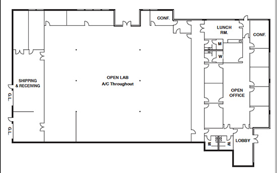
Picture Gallery - 526 Almanor Avenue, Sunnyvale Click on any image to view a large image below. Download/View Flyer 526 Almanor Ave, Sunnyvale ±1,340 SF of open lab space with AC HVAC throughout 2 grade level doors 3.5/1,000 parking 1,200 amps/3 phase distributed power Download/View Flyer 526 Almanor Ave, Sunnyvale $0.45 psf, Net (Net = $.09) Download/View Flyer 526 Almanor Ave Floor Plan Overall view. ±5,580 SF of office space. Download/View Flyer 526 Almanor Ave Floor Plan Inset. ±5,580 SF of office space.