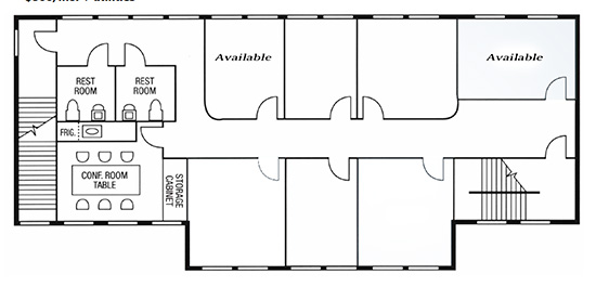
Picture Gallery — Zayante Depot Click on any image to view a large image below. ZayanteDepot Conference room for executive office suites. Individual Showers for Men and Women 6060Graham HillFelton Floor Plan for executive offices on 2nd floor. Reception seating for the Executive Suites Typical executive office suite. Every executive office on the 2nd floor has a computer link to the Conference room. 6062Graham HillFelton No space is available at this time. No space is available at this time. Home of the Santa Cruz County Sheriff